Kellyville

POA

3 3 4

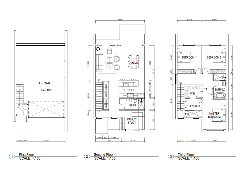
4 Car Garage in Large 3 Bedroom Town Home

Bel-Air’s generously proportioned 3-bedroom, 3-bathroom town homes have been designed to maximise living space and have an epic 4 car garage. The main floor features an open living / kitchen area with floor to ceiling windows and doors, drenching the living space with light. Feel the breeze in the second living area through the elegant Juliet balcony. It is the perfect place for a home office, media room or a place for guests. 

A generously sized all-purpose area can be found on the garage level. Use it for a 4 car garage or alternatively turn it into the ultimate man cave or a games room for the kids or simply use it to store your treasured items. 

Over half of the top floor is dedicated to the main suite, with a walk-in wardrobe and ensuite. As well as two additional bedrooms.

Brand-new town homes nestled amongst a like-minded community, with neighbours that share a passion for sustainability, a desire for the latest technology and have an uncompromising demand for quality construction and the latest design. 

Town Homes in the exclusive enclave Bel-Air have all the benefits of being located at the door step of Norwest Business Park while enjoying the serenity and tranquillity of suburban Kellyville. Commutes are made easy with Bella Vista metro station a short walk away and the M2 and M7 motorways easily accessed.

Smart technology is at the heart of your home, readily accessible from your pre-installed IPad offering convenience and style. At a touch of a button control all your home security and lighting needs. The package is expandable to incorporate your pre-installed living room speakers with the rest of your entertainment choices.  

Bel-Air boasts a sophisticated security system, reassuring you of your family’s safety at home. A touch of your IPad allows you to access your 3 external CCTV cameras in real time, or, retrospectively review the recordings through the backup hard drive system. Screen unexpected guests with the NESS colour intercom system or interact with delivery drivers without opening the door.

Working from home is ideal, with most town homes featuring a built for purpose, home office, thoughtfully positioned away from the living area. The home office is wired with data points which can be customised to your needs, or, alternatively connect to the pre-installed long range WiFi booster for a strong connection. Bel-Air is ready to connect to your preferred NBN service provider.

Make a difference by conserving energy at Bel-Air. Store your solar energy for use during peak periods with the pre-installed LG solar battery system. Minimise your energy footprint with a home that is constructed to use less energy. Consideration has been given to every electrical item, surface, internal construction and inclusion to reduce the amount of energy your household uses on a day to day basis. Bel-Air embraces the wisdom of cold climate construction, with sealed double glazed windows and doors for a more consistent and comfortable home year-round. 

Sophisticated design and luxury inclusions are the keystone of Bel-Air. Every inclusion has been hand-picked for its enduring style, functionality and superior craftsmanship. Luxuriate in the designer bathrooms finished with quality European Villeroy and Boch vanities. Relax and read a book in the beautiful freestanding Parisi bath.  

Stunning designer kitchen superbly appointed with European Miele appliances, an elegant pull-down Methven kitchen mixer tap over a deep Paco Jaanson double sink. The custom-made cabinetry is hand crafted in Sydney and is topped off with luxurious Smartstone benchtop which also extends into a splash back. This dream kitchen is finished with LED under bench lighting, Blum soft close drawer systems and an ample pantry.

Bel-Air, committed to beautiful air, the latest in technology and unparalleled design with luxury. Comfort for everyday living.

All drawings, images and photographs are for illustrative purposes and should be used as a visual guide only. Floor plans are for marketing purposes only. Please note that changes can be made in accordance with the provisions of the sales contract. For full details of provisions and inclusions please refer to the contract of sale which takes precedent over this document.

3 3 4

Details

Suburb Kellyville
Price POA
Property Type Residential
Property ID 648
Category Townhouse

Tools

Share This Property